MFH Durrer

  • Projekt- und Ausführungsplanung
  • Ort: Dallenwil (NW)
  • Jahr: 2021

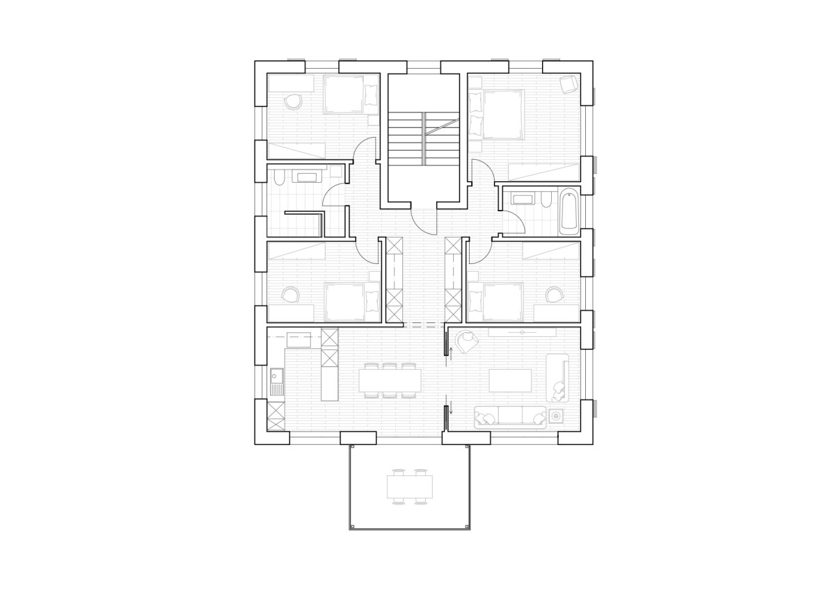
Das sich in der Landwirtschaftszone und zum Betrieb gehörende Wohnhaus wurde durch einen Ersatzneubau ersetzt. Dieser übernimmt unter anderem die Ausrichtung, Formsprache sowie Wohnungsanzahl vom Altbau, allerdings wurde die Position leicht gegen Westen verschoben.

Der Ersatzneubau ist in vier Geschosse gegliedert, welcher drei Geschosswohnungen beinhaltet, sowie ein Untergeschoss mit Nebenflächen wie Keller, Technik und Waschraum. Weiter ist ein Nebengebäude entstanden, welches ein Autounterstand sowie Remiseflächen beinhaltet.